
| 7.2万円 | 号室:601 |
| 共 7000円 | 敷 - |
| 駐 空有:12100円 | 礼 2ヶ月 |
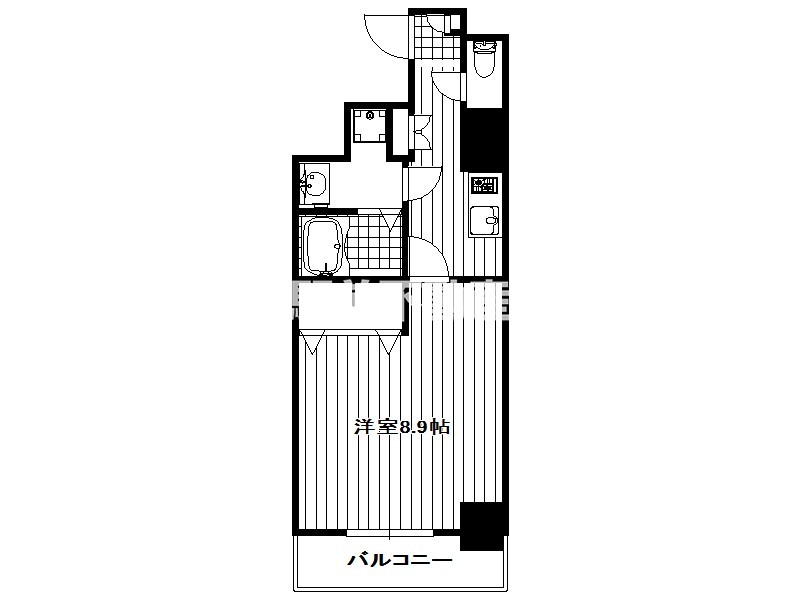
| 1K / 32.04㎡ / 即 | |





























| 物件名 | ピタゴラ箱崎 |
|---|---|
| 住所 | 〒812-0053 福岡県福岡市東区箱崎1丁目29-21 |
| 最寄駅 | 福岡市地下鉄箱崎線 箱崎宮前駅 徒歩5分 JR鹿児島本線 箱崎駅 徒歩4分 福岡市地下鉄箱崎線 箱崎九大前駅 徒歩7分 |
| 種別 | 賃貸マンション |
| 構造/規模 | RC / 11階建て |
| 総戸数 | 42戸 |
| 築年月 | 2023年01月築(築3年) |

ピタゴラ箱崎は福岡県福岡市東区箱崎にあるマンションです。2026年3月14日時点で空室が残り1部屋となっています。ピタゴラ箱崎は福岡市地下鉄箱崎線箱崎宮前徒歩5分、JR鹿児島本線箱崎徒歩4分の場所に立地しています。構造は鉄筋コンクリート造の11階建てで、築3年(2023年1月築)の物件です。周辺の環境はローソン箱崎宮前まで100m、食彩館にしてつストア筥松店まで500mと生活には困らない環境です。 こちらの物件のエリアは福岡本店が担当しております。ピタゴラ箱崎の類似物件もご紹介可能ですので、是非お気軽にお問合せ下さい!駅前不動産では賃貸のお部屋探しから、中古マンションや新築住宅・中古住宅の購入まで、住まいのご相談に関してはすべてサポートさせていただきます。お問い合わせ・ご来店、心よりお待ちしております。
最寄駅
![]()
※施設については閉店・移転している可能性があります。
最新情報をご確認ください。
\親切・親身・笑顔で対応します!/
この物件の担当店舗

福岡県
北九州市門司区の賃貸|北九州市若松区の賃貸|北九州市戸畑区の賃貸|北九州市小倉北区の賃貸|北九州市小倉南区の賃貸|北九州市八幡東区の賃貸|北九州市八幡西区の賃貸|直方市の賃貸|中間市の賃貸|宗像市の賃貸|宮若市の賃貸|飯塚市の賃貸|福津市の賃貸|古賀市の賃貸|福岡市東区の賃貸|福岡市博多区の賃貸|福岡市中央区の賃貸|福岡市南区の賃貸|福岡市西区の賃貸|福岡市城南区の賃貸|福岡市早良区の賃貸|糸島市の賃貸|糟屋郡宇美町の賃貸|糟屋郡篠栗町の賃貸|糟屋郡志免町の賃貸|糟屋郡須恵町の賃貸|糟屋郡新宮町の賃貸|糟屋郡久山町の賃貸|糟屋郡粕屋町の賃貸|那珂川市の賃貸|春日市の賃貸|大野城市の賃貸|太宰府市の賃貸|筑紫野市の賃貸|小郡市の賃貸|朝倉市の賃貸|三井郡大刀洗町の賃貸|うきは市の賃貸|朝倉郡筑前町の賃貸|久留米市の賃貸|柳川市の賃貸|八女市の賃貸|筑後市の賃貸|大川市の賃貸|みやま市の賃貸|三潴郡大木町の賃貸|八女郡広川町の賃貸|大牟田市の賃貸|JR鹿児島本線
小倉駅の賃貸|西小倉駅の賃貸|戸畑駅の賃貸|八幡駅の賃貸|黒崎駅の賃貸|折尾駅の賃貸|海老津駅の賃貸|赤間駅の賃貸|東郷駅の賃貸|福間駅の賃貸|古賀駅の賃貸|新宮中央駅の賃貸|福工大前駅の賃貸|九産大前駅の賃貸|香椎駅の賃貸|千早駅の賃貸|箱崎駅の賃貸|吉塚駅の賃貸|博多駅の賃貸|南福岡駅の賃貸|大野城駅の賃貸|二日市駅の賃貸|原田駅の賃貸|けやき台駅の賃貸|基山駅の賃貸|鳥栖駅の賃貸|久留米駅の賃貸|荒木駅の賃貸|羽犬塚駅の賃貸|筑後船小屋駅の賃貸|瀬高駅の賃貸|大牟田駅の賃貸|荒尾駅の賃貸|玉名駅の賃貸|西鉄天神大牟田線
福岡(天神)駅の賃貸|薬院駅の賃貸|大橋駅の賃貸|春日原駅の賃貸|下大利駅の賃貸|西鉄二日市駅の賃貸|朝倉街道駅の賃貸|筑紫駅の賃貸|三国が丘駅の賃貸|西鉄小郡駅の賃貸|宮の陣駅の賃貸|西鉄久留米駅の賃貸|花畑駅の賃貸|大善寺駅の賃貸|西鉄柳川駅の賃貸|新栄町駅の賃貸|大牟田駅の賃貸|福岡市地下鉄空港線
姪浜駅の賃貸|室見駅の賃貸|藤崎駅の賃貸|西新駅の賃貸|唐人町駅の賃貸|大濠公園駅の賃貸|赤坂駅の賃貸|天神駅の賃貸|中洲川端駅の賃貸|祇園駅の賃貸|博多駅の賃貸|東比恵駅の賃貸|福岡市地下鉄七隈線
橋本駅の賃貸|次郎丸駅の賃貸|賀茂駅の賃貸|野芥駅の賃貸|梅林駅の賃貸|福大前駅の賃貸|七隈駅の賃貸|金山駅の賃貸|茶山駅の賃貸|別府駅の賃貸|六本松駅の賃貸|桜坂駅の賃貸|薬院大通駅の賃貸|薬院駅の賃貸|渡辺通駅の賃貸|天神南駅の賃貸|櫛田神社前駅の賃貸|博多駅の賃貸|賃貸店舗
売買店舗
