
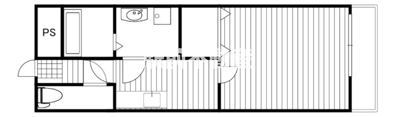
| 4万円 | 号室:102 |
| 共 - | 敷 - |
| 駐 空有:4000円 | 礼 1ヶ月 |
| 1K / 30㎡ / 相談 | |























| 物件名 | サリナス |
|---|---|
| 住所 | 〒839-0851 福岡県久留米市御井町1594-1 |
| 最寄駅 | JR久大本線 久留米大学前駅 徒歩9分 JR久大本線 御井駅 徒歩12分 |
| 種別 | 賃貸マンション |
| 構造/規模 | 鉄骨造 / 2階建て |
| 総戸数 | 12戸 |
| 築年月 | 2003年09月築(築22年) |
サリナスは福岡県久留米市御井町にあるマンションです。2026年1月30日時点で空室が残り2部屋となっています。サリナスはJR久大本線久留米大学前徒歩9分、JR久大本線御井徒歩12分の場所に立地しています。構造は鉄骨造の2階建てで、築22年(2003年9月築)の物件です。周辺の環境はセブンイレブン 久留米御井旗崎店まで500m、Mr.Max久留米インター店まで500mと生活には困らない環境です。 こちらの物件のエリアは久留米インター店が担当しております。サリナスの類似物件もご紹介可能ですので、是非お気軽にお問合せ下さい!駅前不動産では賃貸のお部屋探しから、中古マンションや新築住宅・中古住宅の購入まで、住まいのご相談に関してはすべてサポートさせていただきます。お問い合わせ・ご来店、心よりお待ちしております。
最寄駅
![]()
※施設については閉店・移転している可能性があります。
最新情報をご確認ください。
\親切・親身・笑顔で対応します!/
この物件の担当店舗


大善寺駅から徒歩10分
福岡県久留米市
ベルオロール大善寺
福岡県久留米市の賃貸マンション
空室あり

聖マリア病院前駅から徒歩8分
福岡県久留米市津福本町
福岡県久留米市津福本町の賃貸マンション
福岡県久留米市津福本町の賃貸マンション
空室あり

安武駅から徒歩8分
福岡県久留米市安武町安武本
福岡県久留米市安武町安武本の賃貸マンション
福岡県久留米市安武町安武本の賃貸マンション
空室あり

聖マリア病院前駅から徒歩11分
福岡県久留米市津福今町
福岡県久留米市津福今町の賃貸マンション
福岡県久留米市津福今町の賃貸マンション
空室あり

津福駅から徒歩12分
福岡県久留米市津福今町
福岡県久留米市津福今町の賃貸マンション
福岡県久留米市津福今町の賃貸マンション
空室あり
JR鹿児島本線
新宮中央駅の賃貸|福工大前駅の賃貸|九産大前駅の賃貸|香椎駅の賃貸|千早駅の賃貸|箱崎駅の賃貸|吉塚駅の賃貸|博多駅の賃貸|南福岡駅の賃貸|大野城駅の賃貸|二日市駅の賃貸|原田駅の賃貸|けやき台駅の賃貸|基山駅の賃貸|鳥栖駅の賃貸|久留米駅の賃貸|荒木駅の賃貸|羽犬塚駅の賃貸|瀬高駅の賃貸|大牟田駅の賃貸|荒尾駅の賃貸|玉名駅の賃貸|西鉄天神大牟田線
西鉄福岡駅の賃貸|薬院駅の賃貸|大橋駅の賃貸|春日原駅の賃貸|下大利駅の賃貸|西鉄二日市駅の賃貸|朝倉街道駅の賃貸|筑紫駅の賃貸|三国が丘駅の賃貸|西鉄小郡駅の賃貸|宮の陣駅の賃貸|西鉄久留米駅の賃貸|花畑駅の賃貸|大善寺駅の賃貸|西鉄柳川駅の賃貸|新栄町駅の賃貸|大牟田駅の賃貸|