パークホーム筥松 1LDK 3階 35.09㎡ 6.9万円の賃貸
69,000円(共益費 4000円)
敷金:-|礼金:2ヶ月|駐:無














\PICK UP!/
上場企業のグループ会社【駅前不動産】は全店舗が直営店!年間賃貸仲介12000件の圧倒的な実績で、お部屋探しをサポート致します。駅前不動産『福岡本店』はこちら→092-718-4333
〒812-0061 福岡県福岡市東区筥松4丁目9-5
西鉄貝塚線 貝塚 徒歩4分
| 賃料・共益費 | 69,000円・共益費4000円 |
|---|---|
| 敷金/礼金 | - / 2ヶ月 |
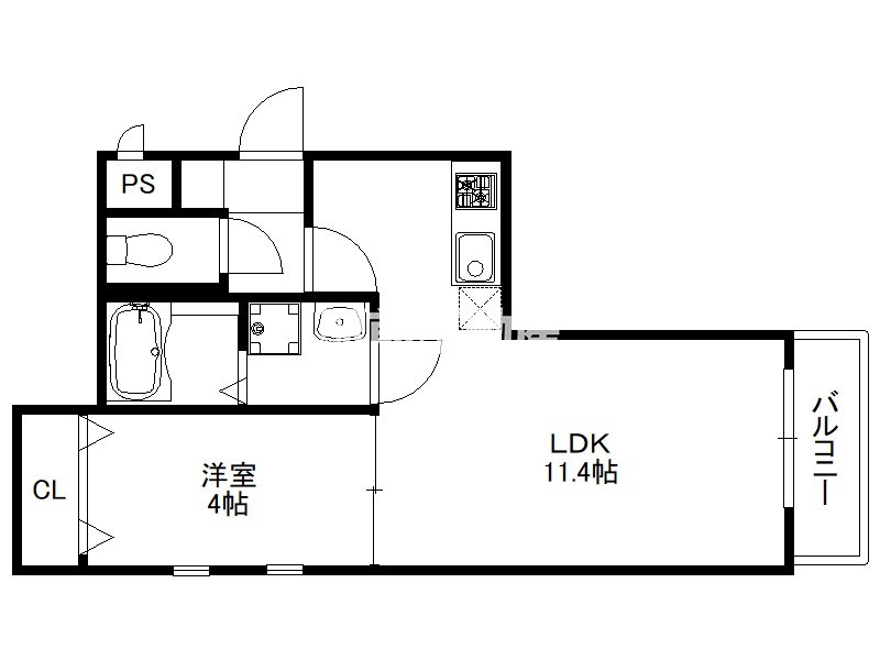
| 間取り(面積) | 1LDK(35.09㎡) |
| 所在階数 | 3階 / 3階建 |
| 築年月 | 2025年03月築(築1年) |
| 種別(総戸)/構造 | 賃貸アパート(9戸) / 木造 |
| 入居可能時期 | 即 |
基本情報
| 物件名 | パークホーム筥松 |
|---|---|
| 号室 | 302号室 |
| 現況 | 空室 |
| 取引態様 | 仲介 |
| 入居可能時期 | 即 |
| 賃料 | 69,000円 |
| 共益費 | 4000円 |
| 敷金/礼金 | - / 2ヶ月 |
| 保証金/敷引 | - / - |
| 駐車場 | 1台目 無 2台目 - |
| 間取り(面積) | 1LDK(35.09㎡) |
| 向き | 東 |
| 所在階数 | 3階 / 3階建 |
| 保証人 | 保証会社要 |
| 築年月 | 2025年03月築(築1年) |
| 種別(総戸)/構造 | 賃貸アパート(9戸) / 木造 |
| 情報掲載日 | 2026年04月10日 |
| 契約種類 | 普通契約 契約期間:2年 |
|---|---|
| 保証会社 備考 | 全保連 初回保証料50% 年更新料13000円 |
| 損保 | 要 保険加入期間:2年 |
| その他費用 | 鍵交換:31,900円 クリーニング費:75,900円 町費:300円 水道代:実費 安心サポート 毎月880円 |
| その他条件 | 初期費用カード決済可 |
※次回更新日は情報更新日より8日以内
物件の設備
バス・トイレ
バストイレ別室 給湯 シャワー 浴室乾燥 洗髪洗面化粧台 洗面所独立 水洗トイレ 温水洗浄便座 室内洗濯置場 オートバス脱衣所 洗面所にドア
キッチン
24H換気 システムキッチン コンロ2口以上独立型キッチン
セキュリティ
オートロック TVモニターホン 防犯カメラ ディンプルキー インターフォン
部屋設備
エアコン 冷房 暖房 CATV 収納スペース W・INクローゼット 宅配ボックス シューズボックス 全居室フローリング玄関収納
建物設備
プロパンガス 上水道 下水道 オートロック 防犯カメラ 敷地内ごみ置き場 駐輪場
その他
フローリング バルコニー 駐輪場 角部屋 複層ガラス 日当たり良好 バイク置場 敷地内ごみ置き場シャッター 通風良好 保証人不要 ネット使用料無料 初期費用カード決済可
マップ
最寄駅
周辺情報
※施設については閉店・移転している可能性があります。
最新情報をご確認ください。

