バウスステージ大濠 1LDK 7階 38.25㎡ 11.1万円の賃貸
111,000円(共益費 5000円)
敷金:1ヶ月|礼金:2ヶ月|駐:空無





























\PICK UP!/
☆新築☆大濠公園も徒歩圏内♪QOLも上がるかも♪
〒810-0054 福岡県福岡市中央区今川1丁目25-15
福岡市地下鉄空港線唐人町 徒歩8分
| 賃料・共益費 | 111,000円・共益費5000円 |
|---|---|
| 敷金/礼金 | 1ヶ月 / 2ヶ月 |
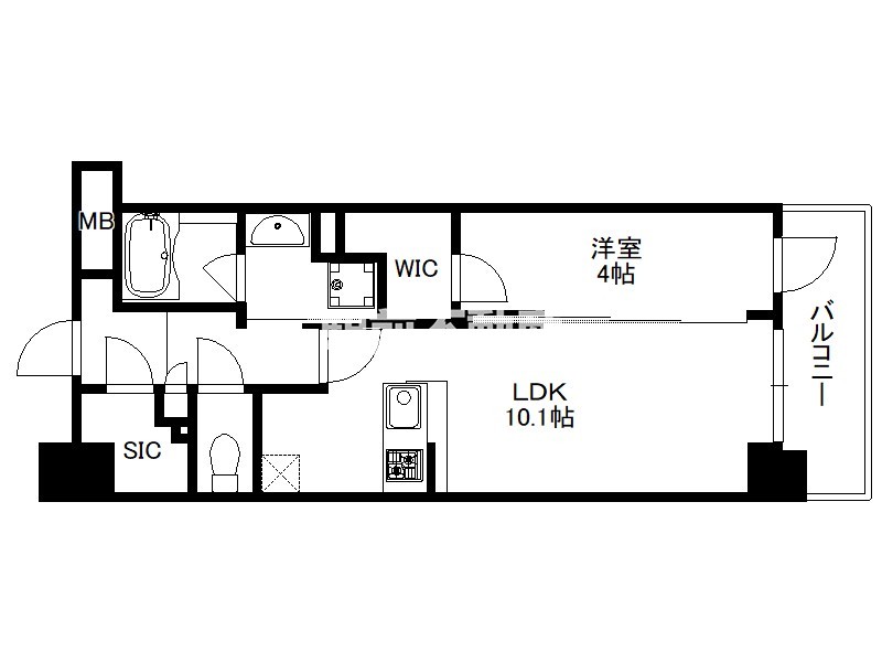
| 間取り(面積) | 1LDK(38.25㎡) |
| 所在階数 | 7階 / 8階建 |
| 築年月 | 2023年11月築(築2年) |
| 種別(総戸)/構造 | 賃貸マンション(78戸) / RC |
| 入居可能時期 | 即 |
基本情報
| 物件名 | バウスステージ大濠 |
|---|---|
| 号室 | 706号室 |
| 現況 | 空室 |
| 取引態様 | 仲介 |
| 入居可能時期 | 即 |
| 賃料 | 111,000円 |
| 共益費 | 5000円 |
| 敷金/礼金 | 1ヶ月 / 2ヶ月 |
| 保証金/敷引 | - / - |
| 駐車場 | 1台目 空無 2台目 - |
| 間取り(面積) | 1LDK(38.25㎡) |
| 向き | 東 |
| 所在階数 | 7階 / 8階建 |
| 保証人 | 保証会社要 |
| 築年月 | 2023年11月築(築2年) |
| 種別(総戸)/構造 | 賃貸マンション(78戸) / RC |
| 情報掲載日 | 2026年01月29日 |
| 契約種類 | 普通契約 契約期間:2年 |
|---|---|
| 保証会社 備考 | 初回保証料50% 月次保証料1% |
| 損保 | 要 保険加入期間:2年 |
| その他費用 | 駐車場備考:駐輪ステッカー代1100円 鍵交換:40,700円 クリーニング費:44,000円 町費:250円 水道代:実費 |
| その他条件 | 初期費用カード決済可 |
※次回更新日は情報更新日より8日以内
物件の設備
バス・トイレ
バストイレ別室 給湯 追焚機能 シャワー 浴室乾燥 洗髪洗面化粧台 洗面所独立 水洗トイレ 温水洗浄便座 室内洗濯置場 オートバス脱衣所 洗面所にドア
キッチン
24H換気 カウンターキッチン システムキッチン コンロ2口以上
セキュリティ
オートロック TVモニターホン 防犯カメラ ディンプルキー インターフォン
部屋設備
エアコン 冷房 暖房 BS CS 収納スペース W・INクローゼット トランクルーム 宅配ボックス シューズボックス 全居室フローリング玄関収納
建物設備
都市ガス 上水道 下水道 エレベータ オートロック 防犯カメラ 敷地内ごみ置き場 駐輪場
その他
フローリング バルコニー 駐輪場 エレベータ 角部屋 バイク置場 敷地内ごみ置き場室内物干機 眺望良好 通風良好 2人入居可 ネット使用料無料 初期費用カード決済可
マップ
最寄駅
周辺情報
※施設については閉店・移転している可能性があります。
最新情報をご確認ください。


