BlancCiel西新II 1LDK 4階 34.4㎡ 11.5万円の賃貸
115,000円(共益費 -)
敷金:-|礼金:2ヶ月|駐:空無














\PICK UP!/
【2026年3月竣工予定】人気エリア、西新の新築マンション★充実の設備★春からの新生活におススメです!
〒814-0002 福岡県福岡市早良区西新1丁目4-27
福岡市地下鉄空港線西新 徒歩5分
| 賃料・共益費 | 115,000円・共益費- |
|---|---|
| 敷金/礼金 | - / 2ヶ月 |
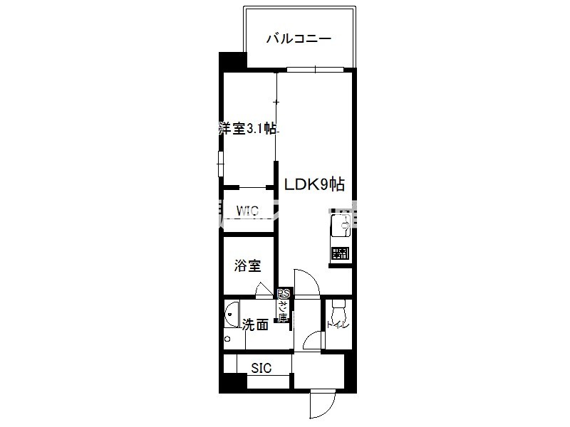
| 間取り(面積) | 1LDK(34.4㎡) |
| 所在階数 | 4階 / 10階建 |
| 築年月 | 2026年03月築(新築) |
| 種別(総戸)/構造 | 賃貸マンション(27戸) / RC |
| 入居可能時期 | 2026年3月 下旬 |
基本情報
| 物件名 | BlancCiel西新II |
|---|---|
| 号室 | 401号室 |
| 現況 | 空室 |
| 取引態様 | 仲介 |
| 入居可能時期 | 2026年3月 下旬 |
| 賃料 | 115,000円 |
| 共益費 | - |
| 敷金/礼金 | - / 2ヶ月 |
| 保証金/敷引 | - / - |
| 駐車場 | 1台目 空無 2台目 - |
| 間取り(面積) | 1LDK(34.4㎡) |
| 向き | 北西 |
| 所在階数 | 4階 / 10階建 |
| 保証人 | - |
| 築年月 | 2026年03月築(新築) |
| 種別(総戸)/構造 | 賃貸マンション(27戸) / RC |
| 情報掲載日 | 2026年03月10日 |
| 契約種類 | 普通契約 契約期間:2年 |
|---|---|
| 保証会社 備考 | - |
| 損保 | 要 保険加入期間:1年 |
| その他費用 | 駐車場備考:要確認 町費:300円 |
| その他条件 | 初期費用カード決済可 |
※次回更新日は情報更新日より8日以内
物件の設備
バス・トイレ
バストイレ別室 給湯 追焚機能 シャワー 浴室乾燥 洗髪洗面化粧台 洗面所独立 水洗トイレ 温水洗浄便座 室内洗濯置場浴室未使用 トイレ未使用
キッチン
システムキッチン コンロ2口以上キッチン未使用
セキュリティ
オートロック TVモニターホン 防犯カメラ インターフォン
部屋設備
エアコン 冷房 暖房 CATV 高速インターネット 収納スペース W・INクローゼット 宅配ボックス シューズインクローゼット シューズボックス 全居室フローリング玄関収納
建物設備
上水道 下水道 エレベータ オートロック 防犯カメラ 敷地内ごみ置き場 駐輪場
その他
フローリング バルコニー 駐輪場 エレベータ 角部屋 デザイナーズ バイク置場 敷地内ごみ置き場眺望良好 通風良好 ネット使用料無料 初期費用カード決済可
マップ
最寄駅
周辺情報
※施設については閉店・移転している可能性があります。
最新情報をご確認ください。


