福岡県久留米市津福本町の賃貸マンション 1LDK 1階 40.6㎡ 6.4万円の賃貸
64,000円(共益費 4000円)
敷金:-|礼金:2ヶ月|駐:空有:4840円



















\PICK UP!/
お問合せは駅前不動産へ
〒830-0047 福岡県久留米市津福本町642-2
西鉄天神大牟田線聖マリア病院前 徒歩5分
| 賃料・共益費 | 64,000円・共益費4000円 |
|---|---|
| 敷金/礼金 | - / 2ヶ月 |
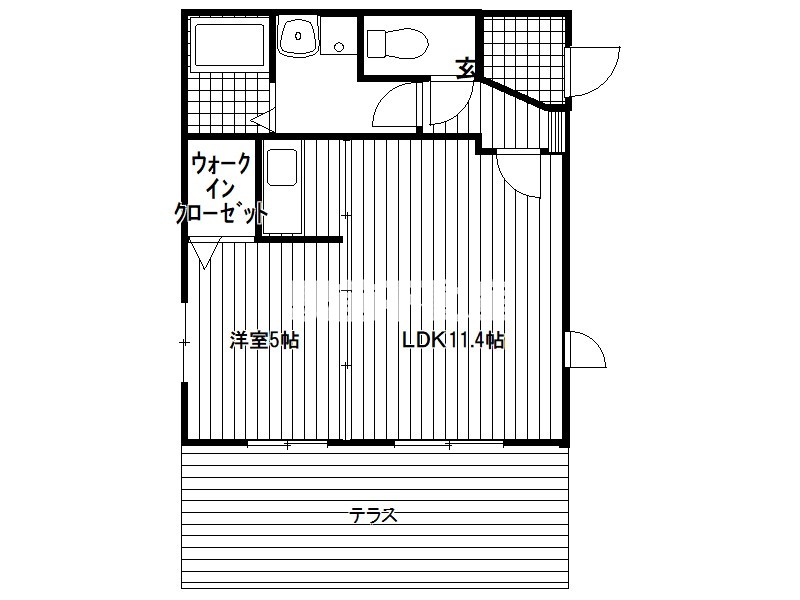
| 間取り(面積) | 1LDK(40.6㎡) |
| 所在階数 | 1階 / 3階建 |
| 築年月 | 2018年01月築(築8年) |
| 種別(総戸)/構造 | 賃貸マンション(9戸) / RC |
| 入居可能時期 | 2026年4月 初旬 |
基本情報
| 物件名 | 福岡県久留米市津福本町の賃貸マンション |
|---|---|
| 号室 | 101号室 |
| 現況 | 空室 |
| 取引態様 | 仲介 |
| 入居可能時期 | 2026年4月 初旬 |
| 賃料 | 64,000円 |
| 共益費 | 4000円 |
| 敷金/礼金 | - / 2ヶ月 |
| 保証金/敷引 | - / - |
| 駐車場 | 1台目 空有:4840円 2台目 - |
| 間取り(面積) | 1LDK(40.6㎡) |
| 向き | 南 |
| 所在階数 | 1階 / 3階建 |
| 保証人 | - |
| 築年月 | 2018年01月築(築8年) |
| 種別(総戸)/構造 | 賃貸マンション(9戸) / RC |
| 情報掲載日 | 2026年03月01日 |
| 契約種類 | 普通契約 契約期間:2年 |
|---|---|
| 保証会社 備考 | 初回保証料100% 年間保証料10000円 |
| 損保 | 要 保険加入期間:2年 |
| その他費用 | 鍵交換:24,200円 町費:470円 |
| その他条件 | 初期費用カード決済可 |
※次回更新日は情報更新日より8日以内
物件の設備
バス・トイレ
バストイレ別室 給湯 追焚機能 シャワー 浴室乾燥 洗髪洗面化粧台 水洗トイレ 温水洗浄便座 室内洗濯置場脱衣所 洗面所にドア
キッチン
-
セキュリティ
オートロック TVモニターホン 防犯カメラ
部屋設備
エアコン 冷房 暖房 収納スペース W・INクローゼット 全居室フローリング
建物設備
プロパンガス 上水道 オートロック 防犯カメラ
その他
フローリング バルコニー 角部屋 ネット使用料無料 初期費用カード決済可
マップ
最寄駅
周辺情報
※施設については閉店・移転している可能性があります。
最新情報をご確認ください。










