新生マンション六ツ門 (福岡県久留米市 中古マンション)の販売物件
420万円
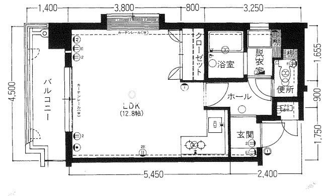
間取り:1R|
専有面積:31.15㎡
バルコニー面積:6.17㎡
花畑駅と久留米駅へもダブルアクセス可能です♪2月上旬退去予定です
物件 No. 3_17549|情報掲載日 2026年02月09日


\PICK UP!/
花畑駅と久留米駅へもダブルアクセス可能です♪2月上旬退去予定です
〒830-0045 福岡県久留米市小頭町3-18
西鉄天神大牟田線 花畑駅 徒歩14分
| 価格 | 420万円 |
|---|---|
| 間取り | 1R |
| 土地面積 | - |
| 建物面積 | - |
| 専有面積 | 31.15㎡ |
| 現況 | 賃貸中 |
| 築年月 | 1988年11月 |
| 規模/構造 | 9階建て/鉄骨造 |
基本情報
| 物件名 | 新生マンション六ツ門 |
|---|---|
| 価格 | 420万円 |
| 土地権利 | 所有権 |
| 現況 | 賃貸中 |
| 引渡し | 相談 |
| 条件等 | - |
| 駐車場 | 無 形式: |
| 管理費/積立金 | 7200円/月 / 3340円/月 |
| 土地面積 | - |
| 建物面積 | - |
| 専有面積 | 31.15㎡ |
| バルコニー 面積・向き | 6.17㎡ / 南西 |
| 地勢・地目 | 平坦 / - |
| 構造・規模 (総戸) | 鉄骨造 / 9階建て(31戸) |
| 築年月 | 1988年11月 |
| 所在階 | 5階 |
| 管理形態等 | 全部委託 |
| 建築確認番号 | - |
| 接道 | - |
| 間取り | 1R |
| 建ぺい率/ 容積率 | 80% / 400% |
| 都市計画/ 用途地域 | 市街化区域 / 商業地域 |
| 法令上の制限 | 景観法 |
| 国土法 | - |
| セットバック | - |
| 情報掲載日 | 2026年02月09日 |
| 取引態様 | 専任媒介 |
| リフォーム施工日 | - |
備考
| その他 | - |
|---|
設備
設備
バイク置き場 駐輪場 エレベーター オートロック 都市ガス 上水道 下水道 給湯 駐輪場 給湯 バイク置場-屋外
その他
所在階2階以上 総戸数30戸以上 南向き 管理員巡回 市街地が近い 駅まで平坦 管理人巡回
マップ
最寄駅
周辺情報
※施設については閉店・移転している可能性があります。
最新情報をご確認ください。

