【区分】福岡県太宰府市朱雀の投資物件
390万円
利回り0%
※利回りは満室時想定時のものです。
学生向け1Kマンション!室内洗濯機置き場あり。現在空室です。
物件 No. 4_17423|情報掲載日 2025年12月05日















\PICK UP!/
前入居者退去後フローリング、クロス、エアコン、IHコンロ、ミニ冷蔵庫を交換しております。室内大変きれいにされてますのでぜひご内覧ください!
〒818-0103 福岡県太宰府市朱雀2丁目17-1
西鉄天神大牟田線 西鉄二日市駅 徒歩6分
| 価格 | 390万円 |
|---|---|
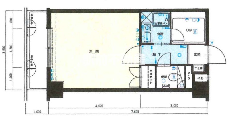
| 間取り | 1K |
| 土地面積 | 1873.76㎡ |
| 建物面積 | 3508.83㎡ |
| 専有面積 | 24.5㎡ |
| 現況 | 空家 |
| 築年月 | 1991年03月 |
| 規模/構造 | 6階建て/RC |
基本情報
| 物件名 | 福岡県太宰府市朱雀の投資物件 |
|---|---|
| 価格 | 390万円 |
| 土地権利 | 所有権 |
| 現況 | 空家 |
| 引渡し | 即時 |
| 条件等 | - |
| 駐車場 | 空無 形式: 空き要確認 |
| 管理費/積立金 | 5300円/月 / 3430円/月 |
| 土地面積 | 1873.76㎡ |
| 建物面積 | 3508.83㎡ |
| 専有面積 | 24.5㎡ |
| バルコニー 面積・向き | 3.5㎡ / 西 |
| 地勢・地目 | 高台 / - |
| 構造・規模 (総戸) | RC / 6階建て(133戸) |
| 築年月 | 1991年03月 |
| 所在階 | 3階 |
| 管理形態等 | 全部委託 |
| 建築確認番号 | - |
| 接道 | - |
| 間取り | 1K |
| 建ぺい率/ 容積率 | 60% / 200% |
| 都市計画/ 用途地域 | 市街化区域 / 第一種住居地域 |
| 法令上の制限 | - |
| 国土法 | - |
| セットバック | - |
| 情報掲載日 | 2025年12月05日 |
| 取引態様 | 専任媒介 |
| リフォーム施工日 | 2025年07月01日(施工箇所:床・壁・キッチン) |
備考
| その他 | お問い合わせは担当松尾まで070-4534-3344、masa.matsuo@relo.jp |
|---|
※利回りや年収は満室想定時のものです。将来にわたって保証されるものではありません。
設備
設備
駐輪場 エレベーター 宅配ボックス オートロック 下水道 給湯 井戸水 収納スペース 室内洗濯機置き場 駐輪場 宅配ボックス 給湯
その他
所在階2階以上 総戸数30戸以上 総戸数100戸以上 即入居可 内装リフォーム フローリング張替 管理人日勤
マップ
最寄駅
周辺情報
※施設については閉店・移転している可能性があります。
最新情報をご確認ください。

