ユメックスマンション大和2-902号 (佐賀県佐賀市 中古マンション)の販売物件
2,150万円
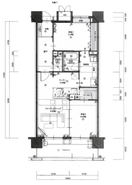
間取り:2LDK|
専有面積:59.64㎡
バルコニー面積:11.6㎡
金額見直しました!大和尼寺の最上階(^▽^)/素敵なマンション♪
物件 No. 3-17469|情報掲載日 2025年11月10日















〒840-0201 佐賀県佐賀市大和町大字尼寺2578-1
JR長崎本線 佐賀駅 徒歩74分
| 価格 | 2,150万円 |
|---|---|
| 間取り | 2LDK |
| 土地面積 | - |
| 建物面積 | - |
| 専有面積 | 59.64㎡ |
| 現況 | 所有者居住中 |
| 築年月 | 2013年03月 |
| 規模/構造 | 9階建て/RC |
基本情報
| 物件名 | ユメックスマンション大和2-902号 |
|---|---|
| 価格 | 2,150万円 |
| 土地権利 | 所有権 |
| 現況 | 所有者居住中 |
| 引渡し | 相談 |
| 条件等 | - |
| 駐車場 | 空有 4500円 形式:敷地内 |
| 管理費/積立金 | 7200円/月 / 4500円/月 |
| 土地面積 | - |
| 建物面積 | - |
| 専有面積 | 59.64㎡ |
| バルコニー 面積・向き | 11.6㎡ / 南 |
| 地勢・地目 | 平坦 / - |
| 構造・規模 (総戸) | RC / 9階建て(-) |
| 築年月 | 2013年03月 |
| 所在階 | 9階 |
| 管理形態等 | - |
| 建築確認番号 | - |
| 接道 | - |
| 間取り | 2LDK |
| 建ぺい率/ 容積率 | 60% / 200% |
| 都市計画/ 用途地域 | 市街化区域 / 第一種住居地域 |
| 法令上の制限 | - |
| 国土法 | - |
| セットバック | - |
| 情報掲載日 | 2025年11月10日 |
| 取引態様 | 一般媒介 |
| リフォーム施工日 | - |
備考
| その他 | - |
|---|
設備
設備
駐車場有 平面駐車場 南面バルコニー オートロック プロパンガス 上水道 下水道 側溝 プロパンガス-集中 上水道-公営
その他
所在階2階以上 所在最上階 南向き 全居室6畳以上 最上階
マップ
最寄駅
周辺情報
※施設については閉店・移転している可能性があります。
最新情報をご確認ください。

