お知らせ
【要予約】11/22・23・24 久留米市荒木町 秋祭りマルシェ・夜カフェ見学会
2025年11月11日

2025年11月22日(土)・23日(日)・24日(月・祝)に久留米市荒木町白口にて秋祭りマルシェ・夜カフェ見学会を開催いたします!腐らない緑の柱のハウスガードシステムを採用した住宅、しかも家具設置済み(ご契約でプレゼント)で暮らしをイメージしながら見学可能です♪WEB来場予約等で今ならAmazonギフト券をプレゼント中♪是非ご家族でお越しください!
【完成見学会】
日 程:2025年11月22日(土)・23日(日)・24日(月・祝)
時 間:
秋祭りマルシェ 10:00~17:00 ※完全予約制
夜カフェ見学会 18:00~21:00 ※完全予約制
住 所:福岡県久留米市荒木町白口字中屋敷2104番11
予約方法:予約フォームから時間を選択してご予約下さい。
★来場特典★
Amazonギフトカード5,000円プレゼント!
※事前来場予約+インスタ投稿で5,000円分進呈となります。
スーパーボールすくいやドリンク・お菓子の無料ご提供もありますので是非ご家族お揃いでお越しください!


分譲地内の奥の区画となります。

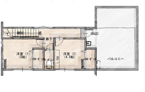
2階

1階
注目していただきたいのは、2Fの大きなルーフバルコニー!シンクも付いており、お子様の水遊びや、BBQなど、セカンドリビングとして楽しめる空間となっております。アイデアの詰まった間取りは、キッチン~パントリー~脱衣室へつながっており、家事ラクに。また、寝室は1Fなので、将来は1Fだけでも生活できる人生設計も楽しめます♪

リビングは黒基調のシックなデザインに。リビングの奥に洋室や水回りがあるので、自然と家族が集まりやすいリビングです。
マイホームを検討中の方も、今後検討予定の方も、是非一度駅前工務店の住宅を見に来てください!
スタッフ一同心よりお待ちしております。

▼ご予約はこちら
予約フォームから時間を選択してご予約ください。
※完全予約制です。

