久留米市上津町第二 新築平屋 (福岡県久留米市 新築一戸建住宅)の建売物件
価格 3,380万円
月々 81,141円※
腐らない『緑の柱』を採用したハウスガードの平屋が上津町に登場!災害対策、家事効率の観点からみてもメリットの多い「ハウスガードの平屋」がいま、人気を集めています。
※金利、支払い期間指定、頭金ボーナス無


\PICK UP!/
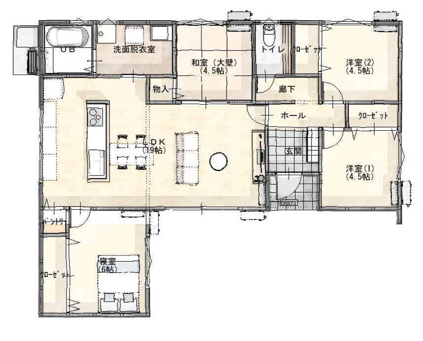
回遊動線のLDKで、忙しい日常を快適に。さらに、洗濯乾燥機「乾太くん」、電気自動車に使用できる「EVコンセント」付きで、お客様のニーズに応えた住宅となっております。
〒830-0052 福岡県久留米市上津町字平野1994番3他
価格 | 3,380万円 |
---|---|
間取り | 4LDK |
土地面積 | 234.02㎡ |
建物面積 | 89.32㎡ |
専有面積 | - |
現況 | 空家 |
築年月 | 2025年07月 |
規模/構造 | -/木造 |
物件 No. 100-165|情報掲載日 2025年10月20日
物件写真

















基本情報
物件名 | 久留米市上津町第二 新築平屋 |
---|---|
価格 | 3,380万円 |
土地権利 | 所有権 |
現況 | 空家 |
引渡し | 即時 |
条件等 | - |
駐車場 | 駐車場3台可 |
管理費/積立金 | - / - |
土地面積 | 234.02㎡ |
建物面積 | 89.32㎡ |
専有面積 | - |
バルコニー 面積・向き | - / - |
地勢・地目 | 平坦 / 宅地 |
構造・規模 (総戸) | 木造 / -(-) |
築年月 | 2025年07月 |
所在階 | - |
管理形態等 | - |
建築確認番号 | R07SHC104512号 |
接道 | 一方 方角: 南東 幅員 4.0m |
間取り | 4LDK |
建ぺい率/ 容積率 | 50% / 80% |
都市計画/ 用途地域 | 市街化区域 / 第一種低層住居専用地域 |
法令上の制限 | - |
国土法 | - |
セットバック | - |
情報掲載日 | 2025年10月20日 |
取引態様 | 一般媒介 |
その他 | - |
---|
設備
設備
全居室収納 システムキッチン 対面式キッチン IHクッキングヒーター 食器洗乾燥機 浄水器 浴室乾燥機 浴室1坪以上 浴室に窓 オール電化 TVモニタ付インターホン 上水道 下水道 電気 エアコン 給湯 追炊機能 温水洗浄便座 駐車場3台以上可 宅配ボックス 独立洗面脱衣所 庭
その他
-
腐らない「緑の柱」のハウスガードシステム

高い防腐効果と、シロアリを寄せ付けない防蟻効果が認められている加圧注入材「緑の柱」を使用した、ハウスガードシステムを採用しています。






倒壊シミュレーション動画
一般的な木材を柱に使用した場合、耐震性能の低下は避けることができません。 木材が劣化した家は、震度7の地震が起きると、倒壊する可能性があることが分かります。※使用ソフト(倒壊解析シミュレーションソフト Wallstat) ※木材の劣化数値(Wallstat開発者 京都大学 中川貴文准教授、広島大学 森拓郎准教授の協力を得て劣化データを入力)
制震装置

制震ダンパーで地震の揺れを吸収し、建物躯体への影響を軽減、建物自体の変形を防ぐことにつながります。耐震+制振+ハウスガードで、より安心と安全を守ります。
エコキュート

空気の力でお湯を沸かす省エネ給湯器「エコキュート」。割安な深夜電力も利用できる、家計と環境に優しいオール電化住宅です。
Low-e複層ガラス

断熱・遮熱性が高いのが特徴で、夏は外の暑さを遮り、冬は室内の熱を逃がしにくくなります。室内の温度を一定に保ちやすいため、節電にもつながります。
キッチン

スマートレンジフードと腰壁で、すっきりとスタイリッシュなキッチン。お手入れしやすいIHクッキングヒーターと食洗機で、片付けも捗ります。
システムバス

自動湯はりや追炊き機能付きのシステムバスなら家族が多くても安心。さらに、浴室乾燥機で雨の日のお洗濯も心配いりません。
スマートキー

玄関はスマートキーで、鍵を出さなくても開錠と施錠が可能です。買い物などで手がふさがっているときに便利なため、人気の高い設備です。
宅配ボックス

近年需要が高まっている宅配ボックスも標準装備。ネットでのお買い物が多いご家庭でもご安心いただけます。※色などは各棟によって異なります
マップ
最寄駅
周辺情報
※施設については閉店・移転している可能性があります。
最新情報をご確認ください。