久留米市荒木町白口6号地 (福岡県久留米市 新築一戸建住宅)の建売物件
価格 3,680万円
月々 88,342円※
腐らない『緑の柱』のハウスガードシステムを採用した新築分譲住宅。シロアリ・腐れに強くメンテンナンスフリー、住んでから差が出るワンランク上の住宅です。
※金利、支払い期間指定、頭金ボーナス無



※2026年1月末までにご契約、2月末までに決済が可能な方限定となります。
\PICK UP!/
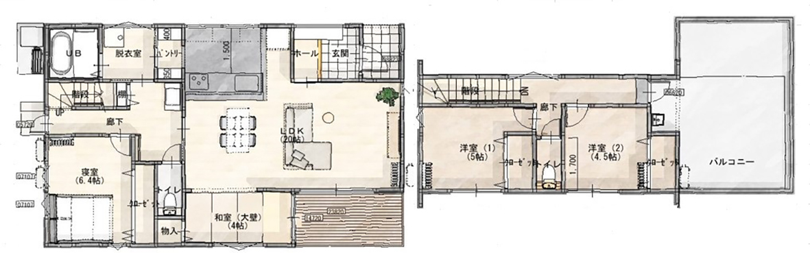
注目していただきたいのは、2Fの大きなルーフバルコニー!シンクも付いており、お子様の水遊びや、BBQなど、セカンドリビングとして楽しめる空間となっております。アイデアの詰まった間取りは、キッチン→パントリー→脱衣室へつながっており、脱衣室と独立タイプの洗面所、脱衣室から出やすい勝手口など、身支度や家事がスムーズにできる動線です!また、寝室は1Fなので、将来は1Fだけでも生活できる人生設計も楽しめます。
〒830-0062 福岡県久留米市荒木町白口字中屋敷2104番11
JR鹿児島本線 荒木駅 徒歩13分
| 価格 | 3,680万円 |
|---|---|
| 間取り | 3LDK |
| 土地面積 | 216.07㎡ |
| 建物面積 | 106.82㎡ |
| 専有面積 | - |
| 現況 | 空家 |
| 築年月 | 2025年11月 |
| 規模/構造 | 2階建て/木造 |
物件 No. 100_181|情報掲載日 2026年01月12日
物件写真

















基本情報
| 物件名 | 久留米市荒木町白口6号地 |
|---|---|
| 価格 | 3,680万円 |
| 土地権利 | 所有権 |
| 現況 | 空家 |
| 引渡し | 即時 |
| 条件等 | - |
| 駐車場 | 駐車場3台可能 |
| 管理費/積立金 | - / - |
| 土地面積 | 216.07㎡ |
| 建物面積 | 106.82㎡ |
| 専有面積 | - |
| バルコニー 面積・向き | - / - |
| 地勢・地目 | 平坦 / 宅地 |
| 構造・規模 (総戸) | 木造 / 2階建て(-) |
| 築年月 | 2025年11月 |
| 所在階 | - |
| 管理形態等 | - |
| 建築確認番号 | 第R07SHC111347号 |
| 接道 | 一方 方角: 東 幅員 6.0m 公道 |
| 間取り | 3LDK |
| 建ぺい率/ 容積率 | 70% / 200% |
| 都市計画/ 用途地域 | 市街化調整区域 / 指定無 |
| 法令上の制限 | - |
| 国土法 | - |
| セットバック | - |
| 情報掲載日 | 2026年01月12日 |
| 取引態様 | 一般媒介 |
| その他 | 高さ制限12m、壁面後退1m 景観法、都市再生特別措置法、文化財保護法 |
|---|
設備
設備
宅配ボックス 全居室収納 システムキッチン 対面式キッチン IHクッキングヒーター 食器洗乾燥機 浄水器 浴室乾燥機 浴室1坪以上 オール電化 ルーフバルコニー TVモニタ付インターホン 上水道 下水道 エアコン 給湯 追炊機能 温水洗浄便座 洗髪洗面化粧台 駐車場3台以上可
その他
LDK15畳以上 和室有 地盤調査済
腐らない「緑の柱」のハウスガードシステム

高い防腐効果と、シロアリを寄せ付けない防蟻効果が認められている加圧注入材「緑の柱」を使用した、ハウスガードシステムを採用しています。






倒壊シミュレーション動画
一般的な木材を柱に使用した場合、耐震性能の低下は避けることができません。 木材が劣化した家は、震度7の地震が起きると、倒壊する可能性があることが分かります。※使用ソフト(倒壊解析シミュレーションソフト Wallstat) ※木材の劣化数値(Wallstat開発者 京都大学 中川貴文准教授、広島大学 森拓郎准教授の協力を得て劣化データを入力)
制震装置
制震ダンパーで地震の揺れを吸収し、建物躯体への影響を軽減、建物自体の変形を防ぐことにつながります。耐震+制振+ハウスガードで、より安心と安全を守ります。
エコキュート

空気の力でお湯を沸かす省エネ給湯器「エコキュート」。割安な深夜電力も利用できる、家計と環境に優しいオール電化住宅です。
Low-e複層ガラス

断熱・遮熱性が高いのが特徴で、夏は外の暑さを遮り、冬は室内の熱を逃がしにくくなります。室内の温度を一定に保ちやすいため、節電にもつながります。
キッチン

スマートレンジフードと腰壁で、すっきりとスタイリッシュなキッチン。お手入れしやすいIHクッキングヒーターと食洗機で、片付けも捗ります。
システムバス

自動湯はりや追炊き機能付きのシステムバスなら家族が多くても安心。さらに、浴室乾燥機で雨の日のお洗濯も心配いりません。
スマートキー

玄関はスマートキーで、鍵を出さなくても開錠と施錠が可能です。買い物などで手がふさがっているときに便利なため、人気の高い設備です。
宅配ボックス

近年需要が高まっている宅配ボックスも標準装備。ネットでのお買い物が多いご家庭でもご安心いただけます。※色などは各棟によって異なります。
マップ
最寄駅
周辺情報
※施設については閉店・移転している可能性があります。
最新情報をご確認ください。

